Alexandria VA Medical Center

Building 7 Air Handler Replacements

Alexandria, LA

Project Details

 

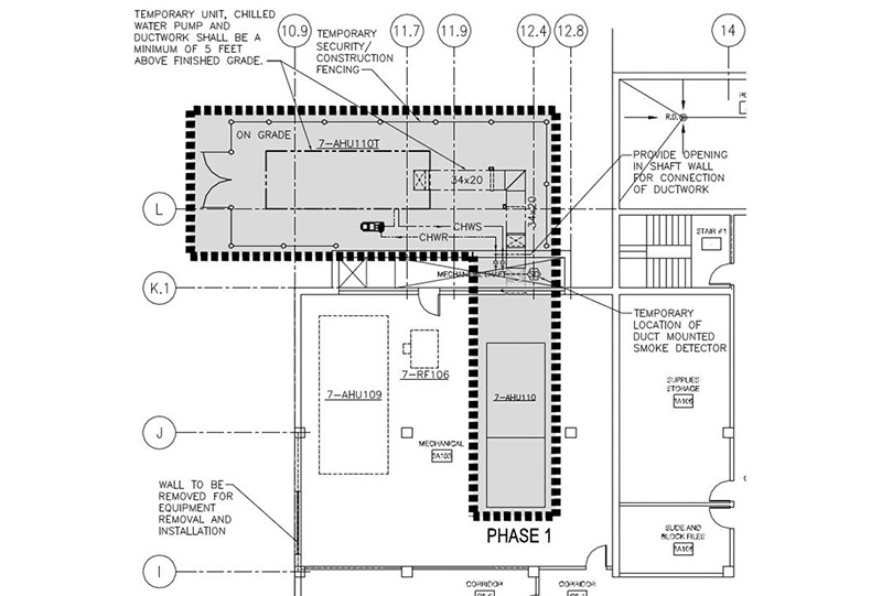
Harrell Design Group, PC provided engineering and architectural design services for the air handler replacement at the VA Medical Center in Alexandria, LA. The intent of this project was to replace 10 of the air handling units of Building 7 in order to improve the air conditioning capabilities of the hospital.

HDG was asked to divide the scope of work into several similar projects to facilitate both funding and construction. The units recommended for replacement serve all major departments such as surgery, emergency, laboratory, radiology, as well as, patient and administrative areas. The scope of work required that the equipment (temporary and permanent) be designed to withstand Category 4 hurricane wind and rain. HDG also created a complex phasing plan to keep everything operational during construction.

Phase A of this project is currently under construction.

 

Project Cost: $4,100,000